4 Bagni 6 Box/Posti auto 470 m2
Caratteristiche principali
Codice
A000157
Prezzo
3.500 EUR / mese
Spese condominiali
3.000 EUR
Classe
A1 (145,09 [kWh/m²a])
Locali
9
mq Terrazzo
50
Altre caratteristiche e accessori
Stato Immobile
Buono
Grado
Medio
Posizione
Periferia
Piano
Primo
Lati Liberi
3
Arredi
Non Arredato
Riscaldamento
Autonomo
Tipo Riscaldam.
Pompa di Calore
Tipo Impianto
Aria
Fonte Energetica
Elettrico
Acqua Calda
Autonoma
Raffrescamento
Split
Infissi
Metallo Doppio Vetro
Serramenti
Discreto
Pavim. Notte
Ceramica
Pavim. Cucina
Ceramica
Pavim. Bagno
Ceramica
Pavimento
Ceramica
Cauzione
Da Definire
Canoni Anticipati
Un Mese
Tipo Contratto
6+6 Anni
Tipo Registr.
Tradizionale
Se stai cercando un locale commerciale spazioso e funzionale, abbiamo la soluzione perfetta per te!
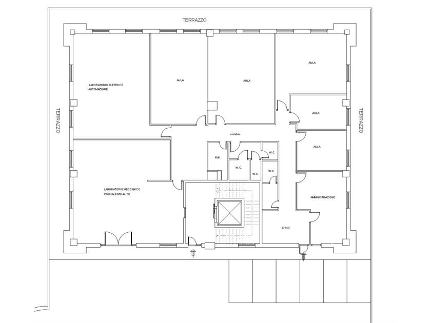
Questo locale, ad uso ufficio e studio privato (categoria A/10), situato a poca distanza dal centro di Albenga, è ideale per molteplici utilizzi: scuola privata, studio di professionisti associati, ambulatorio medico, palestra, oppure per imprenditori che desiderano un ambiente di lavoro accogliente e strategico.

Caratteristiche principali:

Posizione strategica: L'ufficio si trova in una zona comoda e ben collegata, vicino a negozi, ristoranti e servizi essenziali.

Ampio spazio: Con 470 mq di superficie commerciale e 400 mq di superficie calpestabile, avrai tutto lo spazio di cui hai bisogno per lavorare comodamente.

Luminosità naturale: Le ampie finestre permettono una luce naturale che favorisce la produttività e il benessere.

Personalizzazione: Potrai arredare e suddividere lo spazio dell’ufficio secondo le tue esigenze e il tuo stile personale.

Accesso 24/7: L’ufficio è disponibile in qualsiasi momento, perfetto per chi ha orari flessibili.

Sono presenti n. 6 posti auto ubicati davanti all'ingresso dell'immobile.
via al Piemonte 19, Albenga (SV)
Cookie preference